We take vision and turn it into post frame reality.

Our streamlined process ensures your post frame building is built with quality, efficiency, and your satisfaction in mind. From pre-construction planning to construction and post-construction final touches, we are dedicated to making your vision a reality.

Pre-Construction Phase: Turning Your Vision into Reality

The pre-construction phase is just the beginning of the process! We can meet or chat over the phone to discuss how to turn your vision for your post frame building into reality.

We’ll clearly outline the steps to move forward, making the process as stress-free as possible.

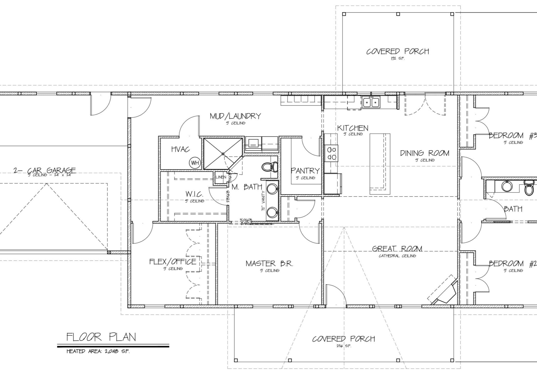
Sc
AliJohnson-17_res (9)

Construction Phase: Building Your Dream Structure

Once we have your materials on site, our experienced construction crews will arrive to begin work. For most buildings, we can have the shell up in just a week!

Each crew is led by a company owner with years of construction experience, ensuring quality and efficiency throughout the process. We pride ourselves on clear communication, so you’ll be kept informed every step of the way.

You’ll be able to see your dream building take shape, and we will be there to answer any questions you have.

Post-Construction Phase: Ensuring Your Satisfaction

This is the final step in the process! We will ensure all finishing touches are complete, and we will check in with you to make sure you are happy with the final product.

We will leave the site free of trash and ready for you to put your building to use. We want to make sure you’re thrilled with your new building, and we will be here to address any issues you have.

Hear from our post frame customers.

Wonderful folks to deal with!

We LOVE family connections within any company ~ it just makes you feel good to support Good people ~ and these guys are the best! EXCELLENT Communication with Alli at all times during our project! She is a Gem!We built a HOME to last our lifetime ~ ALL THANKS to WW Buildings!Highly Recommend them for their Values and for the Quality of their work. Outstanding Experience!

-Pam Scarborough

Great experience

We had such an amazing experience building with W. W. Buildings. We built our forever home and it was all thanks to Alli & Wesley. They were very helpful with us being first time home builders.

-Joey Nesbitt

Amazing company!

WW Buildings is an amazing company with a great team of people from management to construction team. I have wanted a shop for about 30 years and had an exact image in my head of what I wanted. WW Buildings met with me, took down all my ideas and made my dream a reality. Highly recommend you give them a call.

-Jeremy Robertson

12 Buildings Later

We have a total of 12 buildings that have been constructed by WW Buildings and there is a reason for that; their leadership, craftsmanship and honest business practices are a breathe of fresh air. If you are considering a metal building for commercial use, farm use or even a barndominium then give Alli and call to get started, you'll be glad you did.

-Phillip Traylor